Продам 1-комн. квартиру

Мурманск
5 500 000
178 571₽/м2
открыть фото
открыть фото
открыть фото
открыть фото
открыть фото
открыть фото
открыть фото
открыть фото
открыть фото
открыть фото
открыть фото
открыть фото
открыть фото
открыть фото
1/
1комн.
30.8м2
1/5этаж
Характеристики
Адрес
Мурманск
Кол-во комнат
1
Этаж/Этажей
1/5
Площадь(общая/жилая/кухня)
30.8/19.4/5 м2
Тип санузла
совмещенный
Тип дома
Кирпичный
Высота потолков
2.4
Вид из окон
во двор
Наличие интернета
Да
Описание
Эксклюзивное предложение для взыскательных инвесторов: Стильная однокомнатная квартира в кирпичном доме в самом центре Мурманска! Квартира представляет собой образец современного городского жилья: комфорт, функциональность и безупречный дизайн! Ремонт премиум класса: Выровнены стены, Обои под покраску, возможность быстро обновить интерьер, Натяжные потолки с точечным освещением, Качественная напольная плитка, Тёплый пол в комнате и санузле, Окна - качественные стеклопакеты с витражным рисунком. Полная замена всех коммуникаций гарантирует долгие годы безупречной эксплуатации: Заменена электропроводка по всей квартире; Отдельно выведен силовой кабель с мощностью 20 кВт. от общедомового щита; Качественная гидроизоляция в санузле; Продуманное расположение сантехнических приборов повышает эргономику пространства и обеспечивает максимальный комфорт; Узаконенная перепланировка выполнена с соблюдением всех норм и требований: Демонтаж устаревших несущих перегородок и монтаж новых конструкций с раздвижными дверями; Увеличена площадь комнаты и совмещённого санузла, что создаёт ощущение простора. Все документы на руках, готовы к быстрой сделке. Этот объект — не просто жильё, а выгодная инвестиция в качество жизни! Звоните, я отвечу на все вопросы и организую показ!
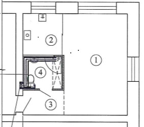
План-схема объекта недвижимости представлена на основе типовых планов помещений в здании. Площади на план-схеме могут иметь незначительные отклонения от площадей, указанных в техническом паспорте объекта.