Продам 2-комн. квартиру

Мурманск
4 450 000
93 487₽/м2
открыть фото
открыть фото
открыть фото
открыть фото
открыть фото
открыть фото
открыть фото
открыть фото
открыть фото
открыть фото
открыть фото
открыть фото
открыть фото
открыть фото
открыть фото
открыть фото
открыть фото
открыть фото
открыть фото
открыть фото
открыть фото
1/
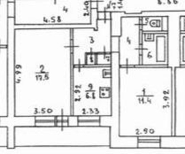
2комн.
47.6м2
9/9этаж
Характеристики
Адрес
Мурманск
Кол-во комнат
2
Этаж/Этажей
9/9
Площадь(общая/жилая/кухня)
47.6/29.2/8.7 м2
Тип санузла
раздельный
Тип дома
Кирпичный
Высота потолков
2.5
Вид из окон
на улицу
Лифт
Да
Наличие интернета
Да
Описание
Предлагаем потенциальным покупателям абсолютно эксклюзивную квартиру. Редкий в Мурманске дом. Планировка, как в двухкомнатной квартире серии 93М. Но это не холодная тонкостенная с плохой звукоизоляцией "панелька", а капитальный кирпичный тёплый дом 1994 года постройки. Изолированные комнаты, большая кухня, вместительный встроенный шкаф в прихожей, раздельный санузел. Ещё один плюс и отличие от 93М - туалет и ванная поменяны местами: туалет не рядом со спальней, а стена ванной не общая с подъездом. Также огромным преимуществом является просторная шестиметровая лоджия, вид с которой, как и изо всех окон квартиры, выходит на символ нашего города - памятник Алёша, и порт. Уважаемые покупатели, представьте себе, как Вы сможете любоваться оттуда салютом в День Победы или светящимися иллюминацией портовыми кранами зимой. На окнах современные стеклопакеты, по всему дому заменены кухонные трубы. На этаже четыре квартиры. На лестничной площадке сделан ремонт и установлена система видеонаблюдения. Соседи дружные. Чистый подъезд. Крыша отремонтирована пять лет назад. Во дворе новая детская площадка. Хорошо развитая инфраструктура: детский сад, школа, супермаркеты, остановки общественного транспорта в шаговой доступности. Десять минут пешком до Перинатального центра. Один взрослый собственник с момента постройки дома. Все документы готовы. Ждём предложений по цене.
План-схема объекта недвижимости представлена на основе типовых планов помещений в здании. Площади на план-схеме могут иметь незначительные отклонения от площадей, указанных в техническом паспорте объекта.